7449 Bonterra Ln
Colorado Springs, CO 80925

Scroll to Content

Details

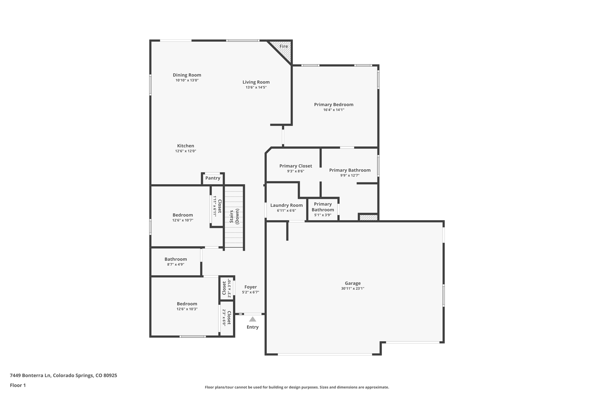
This beautiful 5BR, 3-Bathroom ranch style home with main floor living has so much to offer. Hard wood floors throughout traffic areas, granite countertops in the kitchen and all bathrooms. The kitchen opens to the living room w/ breakfast bar seating, stainless appliances, and pantry. Adorned with large windows and high ceilings the house has a bright and cheery atmosphere. A rock embellished gas fireplace w/ gorgeous wood mantel is inviting on those cold Colorado winter nights. The open floor plan is great for entertaining and has a large deck accessible from the dining room. Master bedroom w/ separate his & her vanities, large soaking jet tub, large walk-in shower and walk in closet. There is a spacious finished garden level basement, with 2 additional bedrooms, bathroom and walk out to the backyard. Entertaining made easy with a comprehensive bar area and walk-out to covered patio and a gazebo covered hot tub. The house sits on a large corner lot w/ shed, side yard, and large grass and rock landscaped backyard. Located near open space, walking trails and community park. Also, conveniently located near I-25, the Powers Corridor, Colorado Springs Airport, and Ft Carson. This home includes a 3 car attached garage w/door opener to house your cars and other toys.

  • $564,880
  • 5 Bedrooms
  • 3 Bathrooms
  • 3,180 Sq/ft
  • 3 Parking Spots
  • Built in 2015

Images

Videos

Floor Plans

3D Tour